Coordinates

On this page

Overview

AVAILABLE TO MOVE IN NOW WITH FLOORING INCLUDED, PLUS 1 PARKING SPACE! 

The Clew is a contemporary 2 bedroom duplex apartment available on the ground floor of Wayfare House at Blackwall Reach. 

The ground floor comprises of two spacious bedrooms, a family bathroom, ample convenient storage cupboards and a utility room. Upstairs, there is an open-plan kitchen/living/dining area, a convenient utility cupboard with adjoining shower room, plus a winter garden area. 

Interested in finding out more? Get in touch with our friendly sales team by clicking the “Make an enquiry” button or email enquiries@beechgrovehomes.co.uk

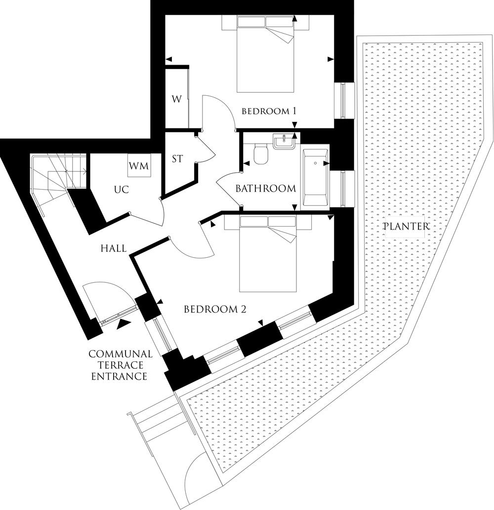
Floorplan

  • Ground Floor

    Dimensions*

    Bedroom 1 

    4.30m x 2.89m | 14' 1" x 9' 4"

    Bedroom 2

    5.12m x 3.01m | 16' 7" x 9' 8"

    Bathroom

    2.20m x 2.00m | 7' 2" x 6' 0"

    *All dimensions are approximate. Some house types are subject to variation in build/layout. Please speak to a Sales Advisor for more details.

  • First Floor

    Dimensions*

    Kitchen/Living/Dining Room

    4.7m x 6.66m | 15' 5" x 21' 10"

    Utility

    1.70m x 1.61m | 5' 5" x 5' 2"

    Shower

    1.70m x 2.38m | 5' 5" x 7' 8"

    Winter Garden

    7sqm | 22.96sqft"

    *All dimensions are approximate. Some house types are subject to variation in build/layout. Please speak to a Sales Advisor for more details.

Floorplate

Location

Just a short walk from Blackwall Reach, Blackwall DLR Station offers quick and easy access not only to East London destinations, but also to Central London and beyond. Crossrail, the new high-speed way to travel across the capital, is set to begin operations in 2022.

Canary Wharf, East London’s flagship Crossrail Station is just 8 minutes from Parkside West.

  • Located adjacent to Blackwall DLR station
  • Canary Wharf Underground Station - 8 minutes
  • Bank Underground Station - 12 minutes
  • Oxford Circus Underground Station - 23 minutes
  • Liverpool Street Underground Station - 6 minutes (Crossrail due to complete 2019)
  • Paddington Underground Station - 16 minutes (Crossrail due to complete 2019)