Coordinates

On this page

Overview

The Osprey Version 2 has a unique layout making this home truly special. The spacious open-plan kitchen, dining and living area includes a charming light-filled nook, perfect for relaxing or working from home. The double bedroom features a built-in wardrobe, complemented by a generously sized bathroom. With an abundance of storage throughout, this home strikes the perfect balance between style and practicality.

Floor Plans

  • Floor plans

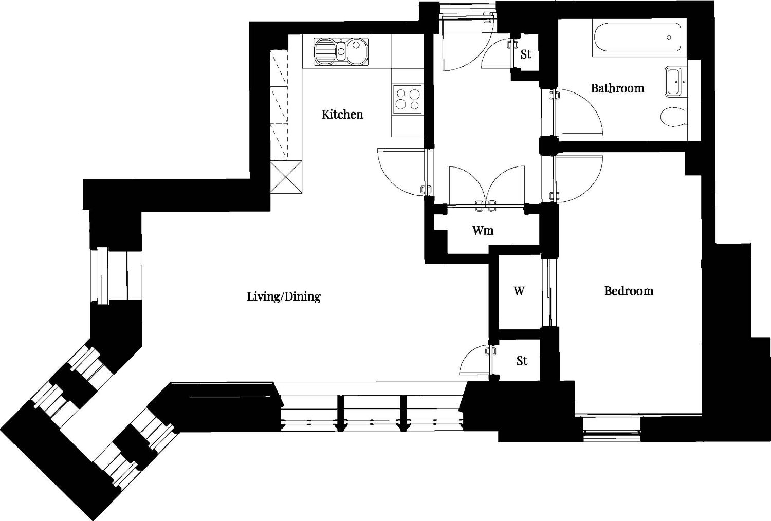
    Second Floor

    No balcony

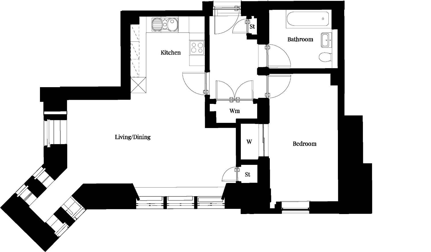
    Third Floor

    No balcony

    *All dimensions are approximate. Some house types are subject to variation in build/layout. Please speak to a Sales Advisor for more details.

  • Apartment 307

    Dimensions*

    Living/Dining

    6.23m x 3.52m | 20’4” x 11’5”

    Kitchen

    2.79m x 2.84m | 9’2” x 9’3”

    Bedroom

    4.69m x 2.54m | 15’4” x 8’3”

    Bathroom

    2.53m x 2.16m | 8’3” x 7’1”

    *All dimensions are approximate. Some house types are subject to variation in build/layout. Please speak to a Sales Advisor for more details.

  • Apartment 309

    Dimensions*

    Living/Dining

    6.23m x 3.52m | 20’4” x 11’5”

    Kitchen

    2.79m x 2.84m | 9’2” x 9’3”

    Bedroom

    4.69m x 2.54m | 15’4” x 8’3”

    Bathroom

    2.53m x 2.16m | 8’3” x 7’1”

    *All dimensions are approximate. Some house types are subject to variation in build/layout. Please speak to a Sales Advisor for more details.

Computer generated image at duck of the Nightingale property types at The Victoria development in Glasgow.

Apartments and availability

  • Apartment 307  |  £230,000  |  Available
  • Apartment 309  |  £235,000  |  Available

Specifications

Standard Specification

  • Kitchen
    • Timeless, high-quality German kitchens by Creative Designs, Impuls range.
    • All doors and drawers feature soft-close mechanism.
    • Fully integrated Bosch kitchen appliances - including oven, ceramic hob, extractor hood, fridge freezer and dishwasher.
    • Bosch washer-dryer (freestanding or integrated depending on apartment layout. Please see individual plans for detail).
    • A choice of laminate work surfaces, perfect for today’s modern kitchens.
    • LED downlights.
  • Bathrooms & En-suites
    •  High quality and elegant white bathroom suite, featuring Vitra basin and soft close WC.
    • All bathrooms and en-suites feature either a walk-in shower or over bath shower. Please see individual apartment plans for detail.
    • A choice of contemporary CTD wall tiling. Full height to bath and shower areas with tiling also provided to walls with sanitary ware (height detail varies by apartment).
    • LED downlights.
  • Internal finishes
    • Smooth ceiling and walls throughout finished in a bright, modern, soft white emulsion. A blank canvas ready for you to make your home unique.
    • Sleek finish, white pencil round skirting and architraves throughout.
    • White hollow core flush internal doors in ladder style.
    • Fitted wardrobes to select bedrooms.
  • Communal
    • Selected apartments enjoy outdoor space in the form of a private terrace or balcony. All apartments have access to the beautiful public realm at The Victoria.
    • All residents can enjoy access to wonderfully landscaped and maintained communal gardens and public space with seating throughout.
    • Entrance foyer with individual wall mounted secure post-boxes for each apartment property.
    • Enclosed cycle store and bin store.
    • Lifts to all apartments in all buildings.
    • Allocated parking.
    • Provision available for EV charging.
  • Peace of mind
    • We are by your side to assist you once you’ve moved in, with our two-year Beech Grove Homes Customer Care service offering.
    • Feel secure with a multi-point locking system to your home front door and video/fob door entry access to apartment main entrances.
    • Mains powered Smoke and CO detectors within each property with battery back-up.
    • Mains powered heat detection system with battery back-up.
    • 10 Year Premier Guarantee new homes warranty.

Location

Your new neighbourhood in the Southside of Glasgow regularly appears in shortlists for the best places to live in the UK. Shawlands, only a short walk from The Victoria, was recently recognised in the Sunday Times Best Places to Live 2023 guide for the second year in a row, being lauded as a creative, culturally rich corner of the city.

Situated only 3 miles south of Glasgow City Centre, The Victoria is ideally placed for easy access to the main motorway network of the M8, M77 and M74.

Mount Florida train station is only a 7 minute walk away with trains running every 15 mins into the city centre. Alternatively, Queen’s Park train station is a 14 minute wal k with the journey taking only 7 minutes to Glasgow Central Station. There are multiple bus routes within a short walk connecting you to the City Centre, West End, East End and beyond.

Glasgow International Airport is also easily accessible, located only 9 miles from The Victoria.

Make an enquiry

Personal details
Contact
Title
Preferred contact method
Which properties are you interested in?
Apartments
I'm Interested In
(please select all that apply)
Im interested in
Privacy

How Will We Use This Information About You?

Here at Beech Grove Homes, we take your privacy seriously. Our Sales team will be in touch to answer your query using the contact details provided above.

We may share your information with other members of Sanctuary Group and third parties working on our behalf but we will never pass on your information to anyone else. You can change your mind at any time by contacting us.

Read our full Privacy statement for further information.

I confirm I have read the Beech Grove Homes privacy statement

Marketing Consent

We'd also like to send you exclusive offers and updates on the property you are interested in, as well as other suitable developments matching your needs. If you are happy for us to contact you in this way, please tick the relevant boxes below.

Marketing preferences